BESCHREIBUNG
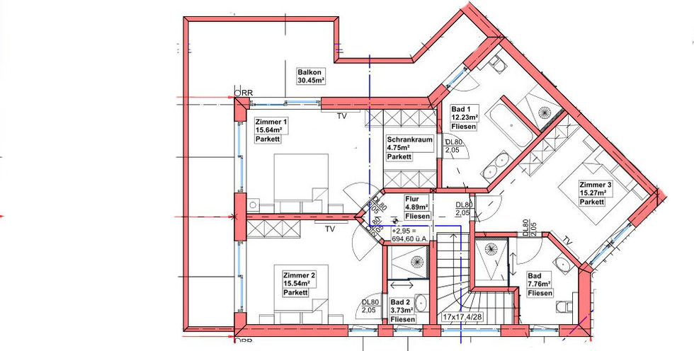
In einer kleinen, exklusiven Wohnanlage mit nur vier Einheiten entsteht dieses moderne Reihenendhaus mit durchdachter Raumaufteilung und hochwertiger Bauausführung. Die Gesamtwohnfläche von ca. 161 m² verteilt sich auf Erd- und Obergeschoss und bietet vier Schlafzimmer – jedes mit eigenem Bad.
ein wunderschöner heller 44m² großer Wohnessbereich mit Blick auf den Wilden Kaiser.
Ein besonderes Highlight ist auch der großzügige Keller mit über 60 m² Nutzfläche, der ebenfalls mit Fußbodenheizung ausgestattet ist.
Einige Ausstattungsdetails sind bewusst noch nicht finalisiert, um Ihnen die Möglichkeit zu geben, persönliche Wünsche einzubringen bspw. kann der Kamin noch ganz nach Ihren Vorstellungen von außen gestaltet werden.
Ausstattung & Übergabe
Die Objekte werden schlüsselfertig übergeben (Preisangaben ohne Möblierung). Hochwertige Materialien, moderne Technik und eine klare, zeitlose Architektur sorgen für hohen Wohnkomfort.
Parkmöglichkeiten
Zu dieser Einheit gehören zwei reservierte Carport-Stellplätze.
Zusätzliche Freistellplätze können bei Bedarf erworben werden.
Nachhaltige Heiztechnik
Das Haus wird über eine innovative Tiefenbrunnenheizung betrieben, die auf Basis von Grundwasser arbeitet – für eine effiziente, kostensparende und umweltfreundliche Beheizung.
Besonderheiten
Exklusive Kleinanlage mit nur vier Einheiten
4 Schlafzimmer mit jeweils eigenem Bad
Großzügiger, beheizter Keller
Modernes Wohnen in naturnaher Umgebung
Dieses Angebot verbindet stilvolles, zeitgemäßes Wohnen mit der Ruhe und Schönheit der Natur. Lassen Sie sich vor Ort von der hohen Bauqualität und der besonderen Lage begeistern.
Carport: € 15.000
Freistellplatz: € 10.000
ANSPRECHPARTNER
Mandy Sobottka
+43[0]66499523996

EIGENSCHAFTEN IM ÜBERBLICK
TYP
Reihenendhaus
Schlafzimmer
4
Größe
Wohnnutzfläche 221 m²
TU 25154
Objektnummer
Heizungsystem
Etagen
Baujahr
2
2024
Wärmepumpe
ORT
Scheffau am Wilden Kaiser, Österreich










