BESCHREIBUNG
Wir freuen uns, Ihnen ein außergewöhnliches Angebot unterbreiten zu dürfen:
Ein wunderschönes Grundstück in der malerischen Gemeinde Mayrhofen, das bereits vollständig erschlossen und baugenehmigt ist.
Das bedeutet für Sie: Keine Leerzeiten, keine Verzögerungen – der Baustart kann schon morgen erfolgen!
Die Eckdaten im Überblick:
Grundstücksgröße: 611 m²
Geplante Wohnfläche: ca. 142 m² je Einheit (Erd- und Obergeschoss, ohne Keller)
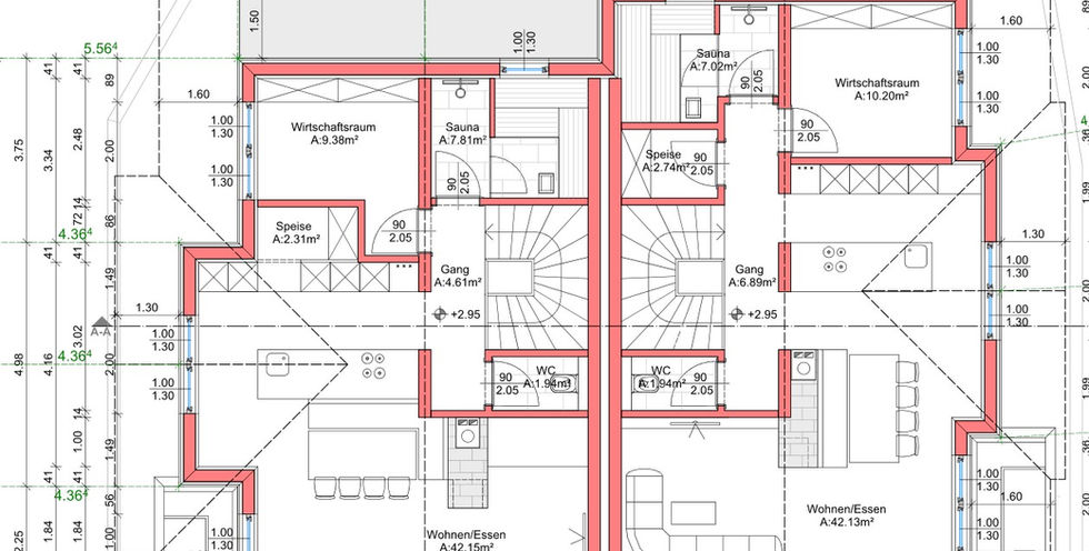
Planung:
Das Grundstück verfügt über eine durchdachte Planung für zwei Doppelhaushälften,
die individuell oder gemeinsam realisiert werden können.
DAS BIETET IHNEN DIESES ANGEBOT:
+ Direkt startklar:
Dank der erteilten Baugenehmigung und dem durchdachten Baukonzept sparen Sie wertvolle Zeit und Kosten.
+ Flexibilität:
Nutzen Sie das Grundstück für ein eigenes Zuhause oder teilen Sie es für zwei Doppelhaushälften.
Sie haben die Möglichkeit, beide Einheiten selbst zu nutzen, eine zu verkaufen oder zu vermieten – zahlreiche Optionen stehen Ihnen offen.
+ Gestaltungsfreiheit:
Das geplante Baukonzept lässt Raum für Ihre individuellen Wünsche und Bedürfnisse.
+ Attraktiver Standort:
Mayrhofen bietet eine ideale Kombination aus Natur, Infrastruktur und Lebensqualität.
Kommen Sie Ihrem Traum vom Eigenheim näher und starten Sie direkt in Ihre Zukunft! Wir stehen Ihnen für weitere Informationen, Besichtigungen oder Rückfragen jederzeit gerne zur Verfügung.
Kontaktieren Sie uns noch heute – wir freuen uns auf Sie!
LAGE
Das Grundstück befindet sich in einem charmanten Ortsteil von Mayrhofen im Herzen des Zillertals.
Diese idyllische Lage bietet eine perfekte Kombination aus ländlicher Ruhe und urbaner Nähe.
Umgebung und Infrastruktur:
Einkaufsmöglichkeiten: Supermärkte, Bäckereien und Drogerien sind nur ca. 5 Autominuten entfernt im Ortszentrum von Mayrhofen. Für den täglichen Bedarf finden Sie alles in unmittelbarer Nähe.
Schulen und Bildungseinrichtungen: Eine Volksschule und eine Mittelschule befinden sich direkt in Mayrhofen. Weiterführende Schulen, wie Gymnasien und Berufsschulen, sind in der näheren Umgebung, z. B. in Zell am Ziller (ca. 15 Minuten mit dem Auto).
Öffentlicher Nahverkehr: Eine Bushaltestelle ist fußläufig erreichbar, und der Bahnhof der Zillertalbahn in Mayrhofen liegt nur ca. 2,5 km entfernt, was eine bequeme Anbindung an die gesamte Region garantiert.
Freizeitmöglichkeiten: Mayrhofen ist bekannt für sein reichhaltiges Freizeitangebot. Wandern, Mountainbiken, Skifahren oder einfach die Natur genießen – hier ist alles möglich.
Entfernungen im Überblick:
Ortszentrum Mayrhofen: ca. 2 km
Bahnhof Mayrhofen: ca. 2,5 km
Nächster Supermarkt: ca. 1,5 km
Schulen: ca. 2–3 km
Skigebiet Penkenbahn: ca. 2,5 km
Innsbruck (Flughafen): ca. 70 km
Eine ausgezeichnete Balance aus Ruhe und Nähe zu allen wichtigen Einrichtungen.
ANSPRECHPARTNER
Mandy Sobottka
+43[0]66499523996

EIGENSCHAFTEN IM ÜBERBLICK
TYP
Grundstück
Schlafzimmer
0
Größe
Grundstücksfläche 611
TU 2597
Objektnummer
Heizungsystem
Etagen
Baujahr
2
Projektiert
Wärmepumpe
ORT
Mayrhofen, Österreich




